无障碍浏览
进入适老化
灵寿县人民政府
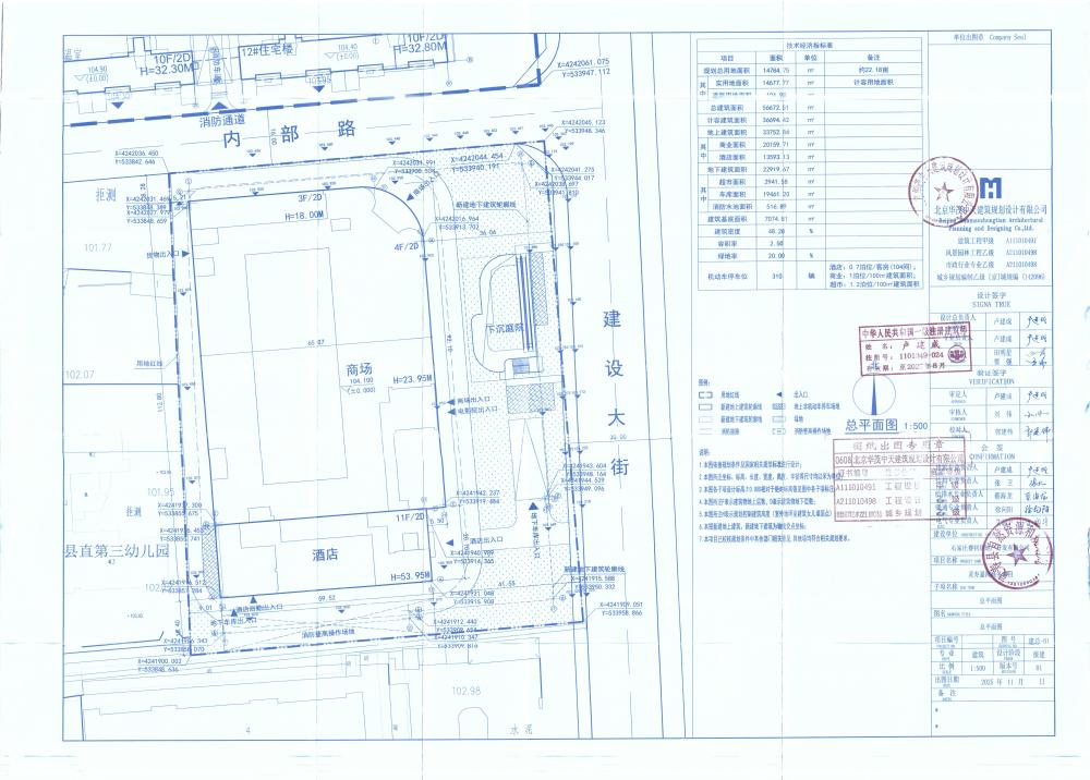
灵寿嘉鸿商务建设工程规划许可证
发布时间:2025-11-21 来源:
【字体:
大
中
小
】
打印
灵寿嘉鸿商务建设工程规划许可证