无障碍浏览
进入适老化
灵寿县人民政府
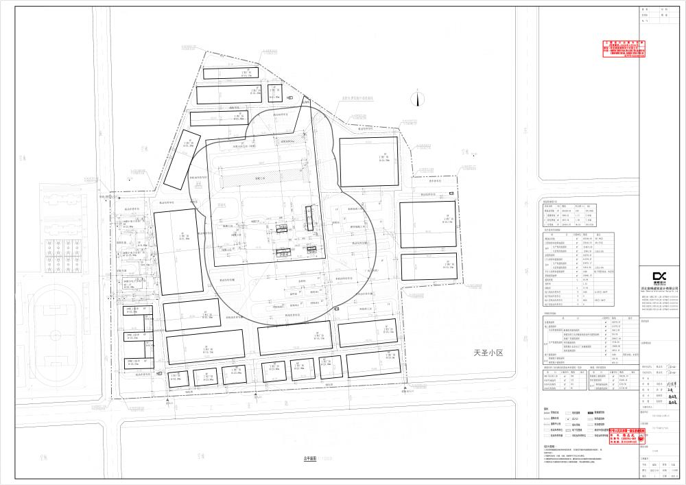
关于天圣军民融合生产基地项目规划方案调整公示的通告
发布时间:2026-02-02 来源:
【字体:
大
中
小
】
打印
关于天圣军民融合生产基地项目规划方案调整公示的通告