无障碍浏览
进入适老化
灵寿县人民政府
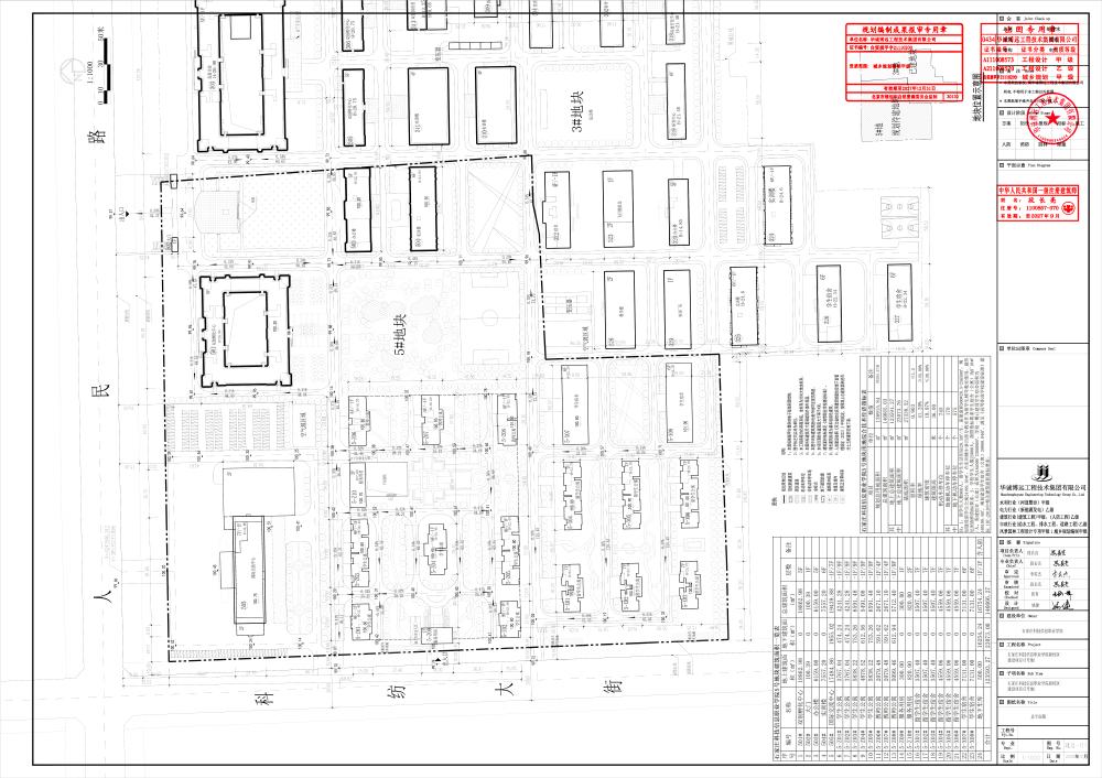
关于石家庄科技信息职业学院新校区建设项目(5号地块)规划方案公示的通告
发布时间:2026-02-04 来源:
【字体:
大
中
小
】
打印
关于石家庄科技信息职业学院新校区建设项目(5号地块)规划方案公示的通告