无障碍浏览
进入适老化
灵寿县人民政府
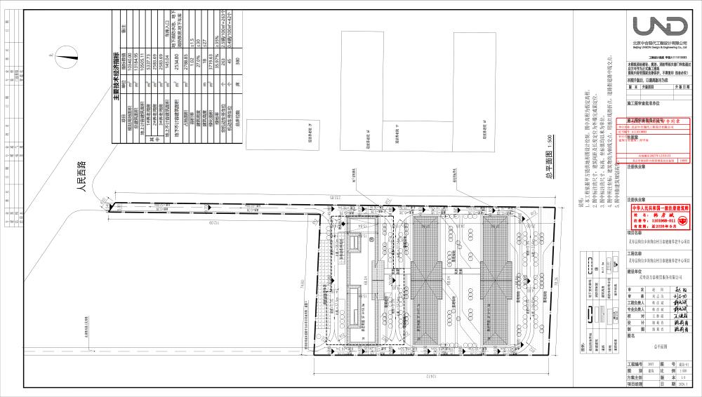
关于灵寿县狗台乡南狗台村方泰健康养老中心项目规划方案公示的通告
发布时间:2026-03-25 来源:
【字体:
大
中
小
】
打印
关于灵寿县狗台乡南狗台村方泰健康养老中心项目规划方案公示的通告